Project Overview
- Project Name : The Queenswoodz @ Bukit Jalil
- Project Location: Beside The Treez, Jalil Link
- Site Area: Approximately 3.44 acres
- Land Tenure: Leasehold
- Land Usage: Commercial (HDA)
- Total Units : Tower A: 494 Units, Tower B: 510 Units
- Build Up Size : 807sft, 936sft, 1206sft, 1410sft
- Total Storeys : Tower A: 50 Storeys, Tower B: 51 Storeys
- Lifts : 5 Passenger Lift +1 Service Lift
- Completion Date : Est. 2029 Q3
The Queenswoodz is a newly launched serviced residence in Bukit Jalil, proudly developed by EXSIM Group. As the highly anticipated second phase of Kingswoodz, this thoughtfully planned project offers a practical blend of modern architecture, green living, and lifestyle convenience — making it an ideal choice for both homeowners and property investors looking for a quality Bukit Jalil condominium.
Strategically located just 500 meters from the Awan Besar LRT Station and within walking distance to Pavilion Bukit Jalil Mall, Queenswoodz is a true transit-oriented development (TOD) that places connectivity at your doorstep. The development is also easily accessible via six major highways, including KESAS, MEX, ELITE, and the Bukit Jalil Highway, ensuring excellent road access across the Klang Valley.
Offering unit sizes ranging from 800 to 1,400 sq ft, Queenswoodz features 2- to 4-bedroom layouts, including highly functional dual-key units — ideal for multi-generational families or flexible rental strategies. Each unit comes partially furnished, complete with kitchen cabinets, air-conditioners, water heaters, and wardrobes, providing move-in-ready convenience. Prices start from approximately RM7xx,000, making it a highly attractive Bukit Jalil new launch for both local and overseas buyers.
Whether you’re searching for a first home, a family upgrade, or a strategic investment in a well-connected location, The Queenswoodz @ Bukit Jalil offers the perfect balance of nature, comfort, and convenience — redefining modern living in one of Kuala Lumpur’s most desirable neighbourhoods.


LOCATION
Located in the vibrant suburb of Bukit Jalil, The Queenswoodz offers excellent connectivity and everyday convenience. Just a short walk from Awan Besar LRT Station and minutes from Pavilion Bukit Jalil, residents enjoy easy access to transport, shopping, dining, and entertainment. For leisure and outdoor living, the 80-acre Bukit Jalil Recreational Park and the Bukit Jalil Golf & Country Resort are also close by — making it an ideal setting for both urban living and nature appreciation.
360° AERIAL VIEW
LAYOUT PLAN
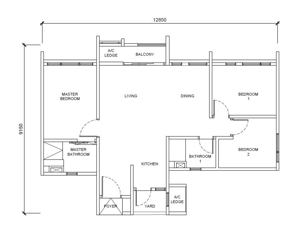
807 sq.ft.
2+1 Rooms | 2 Bathrooms
Monthly Installment start from :
RM 1,8XX per month
936 sq.ft.
3 Bedrooms | 2 Bathrooms
Monthly Installment start from :
RM 2,XXX per month
1206 sq.ft.
3 Bedrooms | 2 Bathrooms
Monthly Installment start from :
RM 3,XXX per month
1410 sq.ft.
4 Bedrooms | 3 Bathrooms
Monthly Installment start from :
RM 4,XXX per month
1410 sq.ft.
4 Bedrooms | 3 Bathrooms
Monthly Installment start from :
RM 4,XXX per month
FACILITIES PLAN
Level G
- Grand Entrances
- King’s Lounge A
- King’s Drop Off
- King’s Lounge B
- King’s Lounge C
Level 8
- Outdoor Vitality
- Foot Chi Garden
- Arcade Paradise
- Aspire Lounge
- Burnout Studio
- Majestic Hall
- King’s Pavilion
- Biopond
- Kid’s La La Land
Level 8
10. Kings Court
11. Azure Bliss Pool
12. Jacuzzi Haven
13. Floaty Splash
14. Garden Plaza
15. Green Solace
16. Lush Lawn
17. Green Solace
18. Nourish Dining
19. Fitness Trial
Level 46
- Skyline Sip A
- Sky Barbeque A
- Sky Nourish Dining A
- Sky GreeneryGalore A
- Skyline Sip B
- Sky Barbeque B
- Sky Nourish Dining B
- Sky GreeneryGalore B
- Skyline Sip C
- Sky Barbeque C
- Sky Nourish Dining C
- Sky GreeneryGalore C
FACILITIES CONCEPT
frequently asked questions
How Many Unit in The Queenswoodz Bukit Jalil ?
The Queenswoodz Bukit Jalil features a total of 1,004 residential units across its 2 towers, each with 50 to 51 storeys
What are the nearby attractions or amenities around Exsim Queenswoodz Bukit Jalil ?
The Queenswoodz Bukit Jalil is surrounded by a range of attractions and amenities that enhance both convenience and lifestyle:
Shopping and Dining:
- Pavilion Bukit Jalil: Just 850 meters away, this premier shopping mall offers a vast selection of retail outlets, restaurants, and entertainment options.
- Aurora Place Bukit Jalil: A lifestyle hub featuring dining, retail, and entertainment options.
Public Transportation:
- Awan Besar LRT Station: Located only 500 meters away, providing easy access to the rest of Kuala Lumpur via the LRT Sri Petaling line.
Recreational Facilities:
- Bukit Jalil Recreational Park: An 80-acre green space ideal for jogging, family outings, and picnics.
- Bukit Jalil Golf & Country Resort: Offering golfing and other recreational activities within a short distance
Education:
- Nearby educational institutions include SJK(C) Lai Meng, Tzu Chi International School, and International Medical University (IMU), providing options for families and students.
Healthcare:
- Tzu Chi International Medical Center and IMU Healthcare Center are located nearby for healthcare needs.
These nearby amenities make The Queenswoodz Bukit Jalil an attractive option for both residents and investors looking for a balanced urban lifestyle.
How Many Lifts in a Level ?
Each level is equipped with a total of 5 passenger lifts and 1 service lift.
What is the expected completion date for The Queenswoodz Bukit Jalil ?
The expected completion date for The Queenswoodz Bukit Jalil is 2029 Q4
What is the monthly maintenance fee ?
For Exsim Queenswoodz Bukit Jalil, the monthly maintenance fee is RM 0.42 per square foot, which includes the sinking fund.
What is the starting price for units at The Queenswoodz Bukit Jalil?
The starting price for units at The Queenswoodz Bukit Jalil by Exsim is :
- 2+1 rooms: Priced from RM 765,800 for a 807 sq. ft. space. Monthly installments start at RM 2,9XX.
- 3 Bedroom Unit: Priced from RM 848,400 for a 936 sq. ft. space. Monthly installments start at RM 3,XXX.
- 3 Bedroom Unit: Priced from RM 1071,400 for a 1206 sq. ft. space. Monthly installments start at RM 4,XXX.
- 4 Bedroom Unit: Priced from RM 1202,600 for a 1410 sq. ft. space. Monthly installments start at RM 4,XXX.
What are the furnishing for Queenswoodz Bukit Jalil ?
Furnishing included:
- kitchen High & Low Cabinet
- Hod & Hoobs
- Mircrowave
- Branded Fridge
- Bathroom accessories
- Water Storage Heater
- Air conditioner
- Built in Wardrobe (Master Room)
- Washing Machine & Dryer
- Digital Lockset
What security features are included in The Queeenswoodz Bukit Jalil ?
The Queenswoodz Bukit Jalil offers a multi-tier security system to ensure the safety of its residents. This system includes several layers of security features:
- Gated and guarded entry: The development is enclosed, with controlled access points to monitor and regulate entry.
- 24-hour security patrols: Security personnel conduct regular patrols to maintain a safe environment.
- CCTV surveillance: Comprehensive surveillance is installed throughout the development, covering all key areas.
- Access card system: Residents are provided with access cards for restricted areas like lifts and private facilities, adding an extra layer of security.
This multi-tiered security approach ensures that residents enjoy a safe and secure living experience
Is there a showroom or virtual tour available for The Queenswoodz Bukit Jalil ?
The Queenswoodz Bukit Jalil offers multiple ways for potential buyers to explore the project. There is both a 360-degree virtual tour (Online Zoom Section) available for those who prefer an online experience, and a physical showroom for in-person visits.
Additionally, three different show units are available for viewing, allowing prospective buyers to experience the various layout options. The sales gallery is open daily from 10 AM to 6 PM, but visits are by appointment only. To schedule a viewing, please contact the sales team at +60166017321
