Project Overview
- Project Name : The Vividz Bukit Jalil
- Project Location: Front of Pavillion 2 (KL Wellness Area)
- Site Area: Approximately 2.55 acres
- Land Tenure: Leasehold
- Land Usage: Commercial (HDA)
- Total Units : Tower A: 569 Units, Tower B: 569 Units
- Build Up Size : 484 sft, 689 sft, 915 sft
- Total Storeys : 57 Storeys
- Lifts : 5 Passenger Lift +1 Service Lift
- Completion Date : Est. 2029 Q2
The Vividz Bukit Jalil is Exsim Group’s latest residential project in 2024, located in Bukit Jalil, Kuala Lumpur, as part of the KL Wellness City masterplan. Also referred to as Veladaz 2, this development builds on the success of Exsim’s previous projects like The Rainz, The Treez, and Veladaz.
The project stands out for its focus on vibrant urban living, offering a range of layouts designed to suit diverse lifestyles, from 1-bedroom units to 3-bedroom family homes. It features two towers with 569 units each, ranging from 484 sq. ft. to 915 sq. ft., providing comfortable living spaces that emphasize wheelchair and stroller accessibility—a unique feature that makes it senior and family-friendly.
Positioned across from Pavilion Bukit Jalil Mall and adjacent to KL Wellness City, the development ensures connectivity to nearby facilities like Alam Sutera LRT station, Tzu Chi International School, and Bukit Jalil Recreational Park. Residents will benefit from a free shuttle bus service to key locations, enhancing the convenience of living in one of Kuala Lumpur’s premium addresses.
For convenience, the development is strategically located near major highways and public transportation, with a free shuttle bus service connecting residents to Pavilion Bukit Jalil and nearby LRT stations. The proximity to key locations such as Pavilion Bukit Jalil, Mid Valley, and Sunway ensures a well-connected lifestyle.
Development in Wellness City Concept
The Vividz Bukit Jalil is part of this larger masterplan, seamlessly aligning with the wellness focus of the township. It offers residents the opportunity to enjoy a luxury lifestyle while being immersed in a health-conscious community. The project incorporates design features such as elderly-friendly layouts and sustainable architecture (GreenRE certified), catering to both younger professionals and families who are conscious of their health and well-being. With amenities like wheelchair and stroller accessibility, The Vividz Bukit Jalil complements the wellness-centric lifestyle by providing ease of living and connectivity to major healthcare and recreational facilities within the KL Wellness City
LOCATION
Veladaz Residences offers an ideal location, just a short distance from Pavilion Bukit Jalil, a top shopping destination in Kuala Lumpur, where residents can enjoy a wide range of retail, dining, and entertainment options. The development is also well-connected for commuters, with easy access to major highways such as MEX, LDP, and KESAS, ensuring convenient travel to other parts of the city. In addition, residents benefit from nearby public transportation, including LRT stations like Sri Petaling and Alam Sutera.
For added convenience, the developer provides an exclusive bus service for residents, offering direct routes to Pavilion Bukit Jalil and the Awan Besar LRT station. This service enhances connectivity and makes daily commuting or leisure trips even more accessible for Veladaz residents. The area is also home to excellent amenities, including top educational institutions like Tzu Chi International School and the International Medical University, as well as recreational spots such as Bukit Jalil Golf & Country Resort and the Bukit Jalil National Stadium
360° BUKIT JALIL VIEW
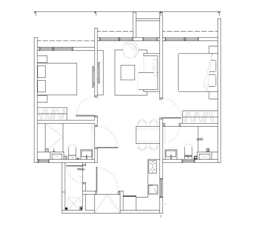
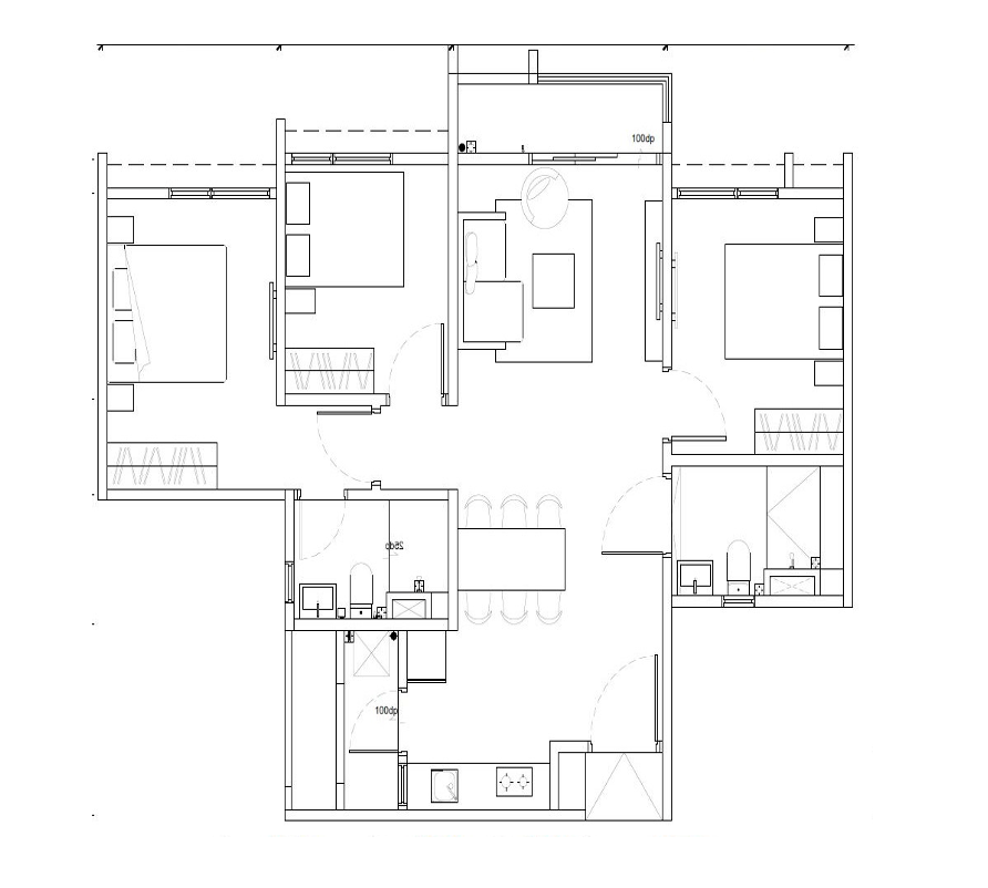
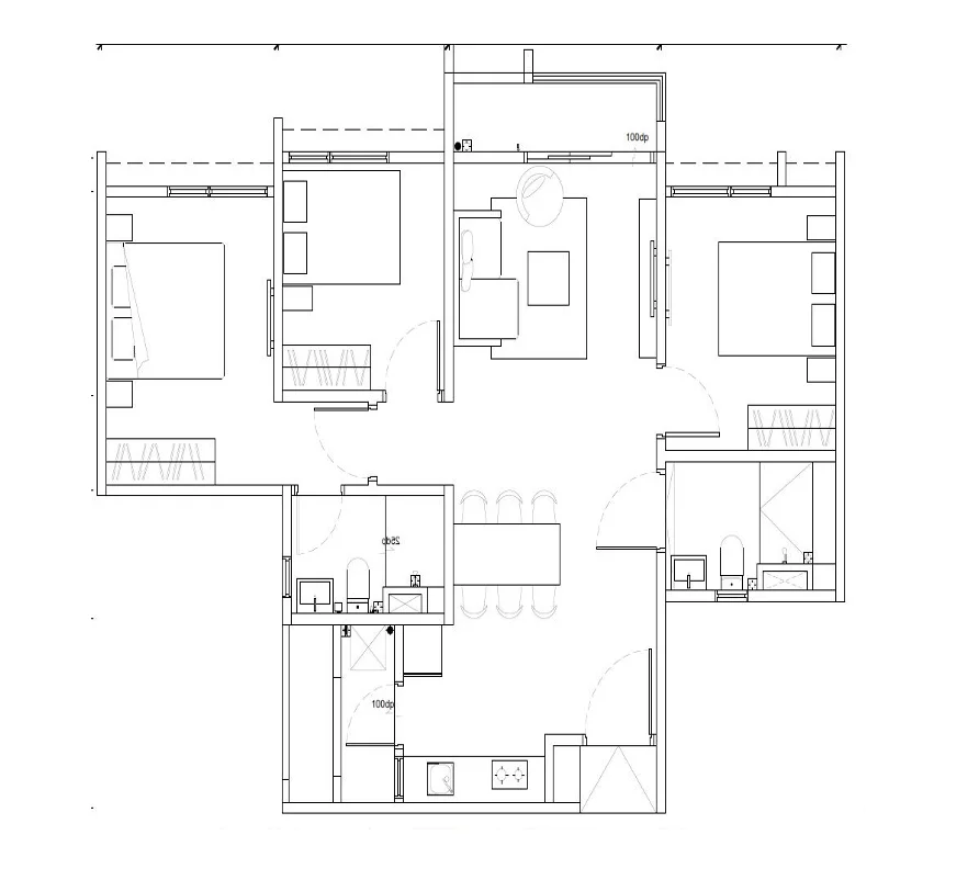
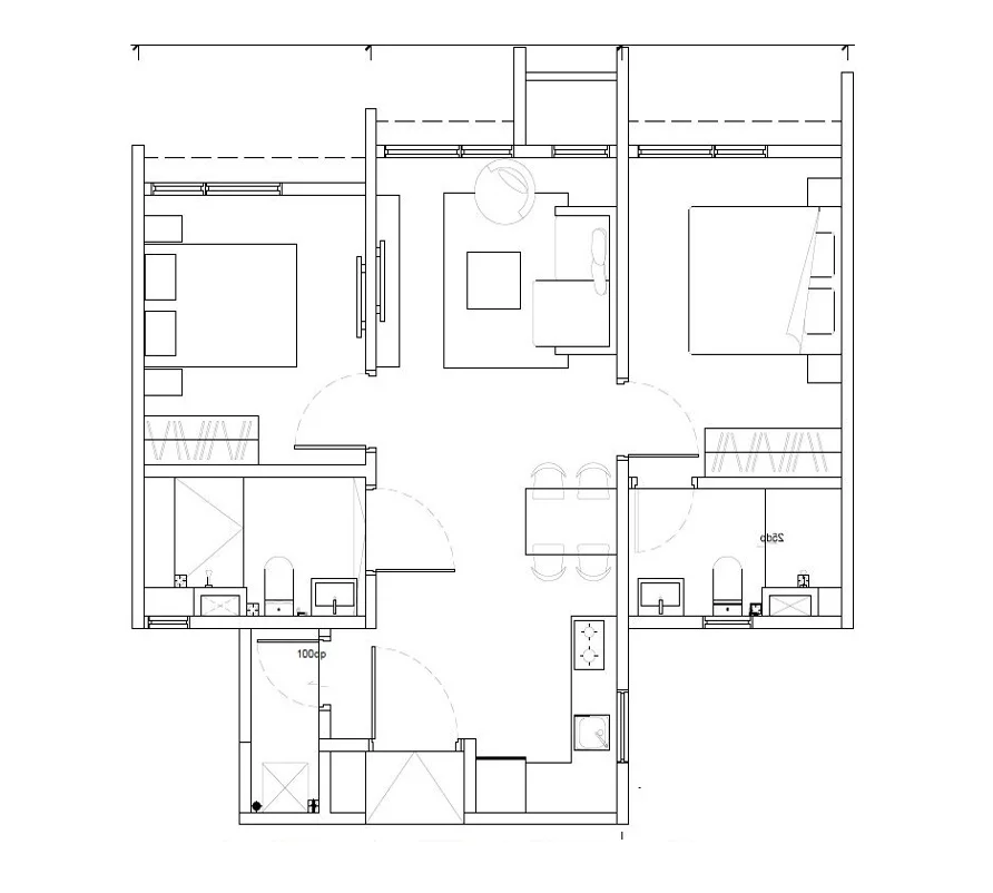
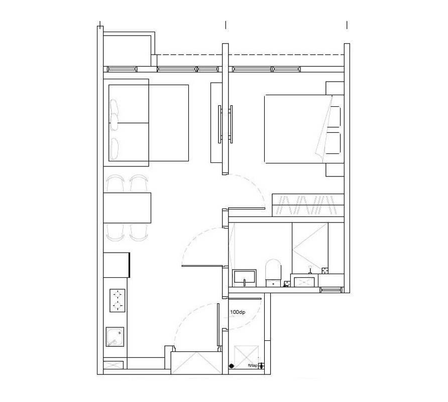
LAYOUT PLAN
484 sq.ft.
1 Rooms | Bathrooms
(Non Balcony Option)
Monthly Installment start from :
RM 1,8XX per month
689 sq.ft.
2 Bedrooms | 2 Bathrooms
(Non Balcony Option)
Monthly Installment start from :
RM 2,XXX per month
915 sq.ft.
3 Bedrooms | 2 Bathrooms
(With Balcony / Non Balcony Option)
Monthly Installment start from :
RM 3,XXX per month
FACILITIES PLAN
frequently asked questions
What are the nearby attractions or amenities around Exsim The Vividz Bukit Jalil?
The Vividz by Exsim in Bukit Jalil is surrounded by a variety of attractions and amenities, making it an ideal place to live. Some notable nearby attractions include:
1. Pavilion Bukit Jalil: Located just 1.4 km away, this premier shopping destination offers a wide range of retail outlets, dining options, and entertainment facilities, making it a hub for leisure and shopping
2. Educational Institutions: The area is home to several reputable schools and universities, such as:
- Tzu Chi International School (1.3 km away)
- International Medical University (5 km)
- Sunway University and Monash University (both under 10 km)
3. Healthcare Facilities: Nearby hospitals include:
- KMI Taman Desa Medical Centre (8.1 km)
- Sunway Medical Centre (8.4 km)
- Assunta Hospital (10.5 km)
4. Recreational Spots: Residents can enjoy outdoor activities at:
- Bukit Jalil Golf & Country Resort (3.5 km)
- Bukit Jalil National Stadium and 80 Acres Recreation Park
5. Public Transport: The area offers excellent connectivity with Sri Petaling LRT Station (2 km) and Alam Sutera LRT Station (3 km) for convenient commuting
This prime location ensures that residents of Vividz Bukit Jalil have access to everything they need, from education and healthcare to shopping and recreation.
How Many Lifts in a Level ?
Each level is equipped with a total of 5 passenger lifts and 1 service lift.
What is the expected completion date for Exsim Vividz Bukit Jalil ?
The estimated completion date for The Vividz Bukit Jalil by Exsim is after 52 month after obtain the APDL.
What Is Current Construction Stage of The Vividz Bukit Jalil?
The current construction stage of The Vividz Residences at Bukit Jalil is in the ground floor cleaning phase, with materials and construction machinery being moved onto the site.
What is the monthly maintenance fee ?
The monthly maintenance fee for The Vividz Bukit Jalil is RM 0.44 per square foot (Including sinking funds), providing residents with access to its wide range of amenities and services
What is the starting price for units at The Vividz Bukit Jalil?
The Vividz Bukit Jalil by Exsim provides various layout options ranging from 484 to 915 square feet, 1 rooms unit to 3 rooms units. Prices start from RM 452,400 to RM 794,5000, making it a relatively affordable choice for both homeowners and investors.
Does Developer provide any service to Pavilion Bukit Jalil or to LRT Station ?
What are the Furnishing Package for Vividz Bukit Jalil by Exsim ?
The Vividz Bukit Jalil by Exsim provides a Partial furnishing package that includes:
- Built-in high and low kitchen cabinet
- Kitchen hood and gas hob
- Refrigerator
- Microwave
- Branded 2-in-1 washer dryer OR Branded washing machine
- Branded dryer
- Air-conditioner (2 sets) – for living hall and master bedroom
- Wardrobe (1 set) – for master bedroom
- Bathroom accessories
- Storage water heater
**For detailed information about the exact items included in the furnishing package, it is recommended to contact the sales team or visit the sales gallery.
What security features are included in The Vividz Bukit Jalil ?
The Vividz Bukit Jalil prioritizes resident safety through a multi-tier security system. Key features include:
- 24-hour Security: Dedicated personnel continuously monitor the premises at key locations to ensure safety around the clock.
- CCTV Surveillance: Real-time monitoring through strategically placed cameras in common areas, providing enhanced visibility of the surroundings.
- Access Card System: A secure electronic system allows only residents and authorized personnel to access restricted areas, ensuring privacy.
- Gated and Guarded: The development is enclosed with secure gates and security checkpoints at all entry and exit points, offering controlled access to the community.
These features are designed to provide residents with both peace of mind and a safe living environment, making security a central component of the development’s overall appeal.
Is there any Sales Gallery for The Vividz Bukit Jalil ?
The Vividz sales gallery is open daily from 10 AM to 6 PM. However, visits are by appointment only, and prospective buyers should contact the sales team at +60166017321 to schedule showrooms viewing.
For those unable to visit the showroom in person, an online consultation option is available. Clients can arrange an online session with the sales team to discuss the development and get all the necessary details without having to be physically present.
